
INCH-POUND
AN839 Rev 8
7 June 2011
SUPERSEDING
AN839 Rev 7
30 August 1982
DETAIL SPECIFICATION SHEET
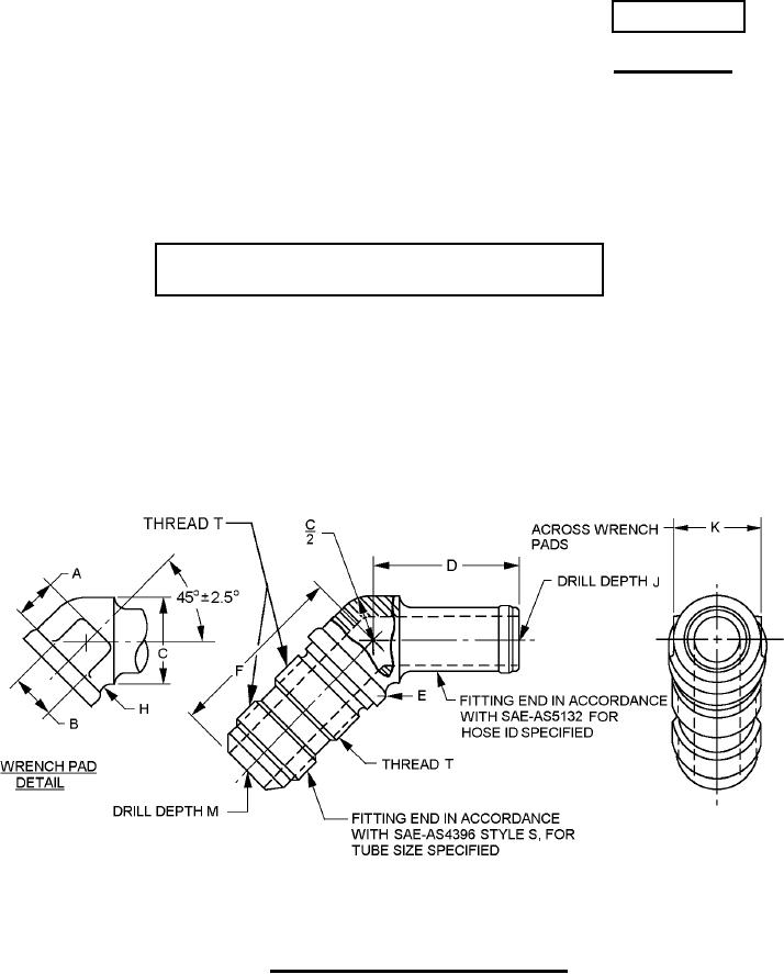
ELBOW, TUBE TO HOSE, 45°
Reinstated after 7 June 2011. Inactive for new design.
For new design, use SAE-AS5182.
This specification is approved for use by all Departments and
Agencies of the Department of Defense.
The requirements for acquiring the product described herein shall consist of this specification sheet
and SAE-AS4843/1.
FIGURE 1. 45°Elbow dimensions and configurations.
AMSC N/A
FSC 4730
For Parts Inquires call Parts Hangar, Inc (727) 493-0744
© Copyright 2015 Integrated Publishing, Inc.
A Service Disabled Veteran Owned Small Business