
INCH-POUND
AN849 Rev 12
7 June 2011
SUPERSEDING
AN849 Rev 11
17 May 1984
DETAIL SPECIFICATION SHEET
NIPPLE, HOSE
Reinstated after 7 June 2011. Inactive for new design.
For new design, use SAE-AS5189.
This specification is approved for use by all Departments and
Agencies of the Department of Defense.
The requirements for acquiring the product described herein shall consist of this specification sheet and
SAE-AS4843.
Inch
mm
.0313
0.795
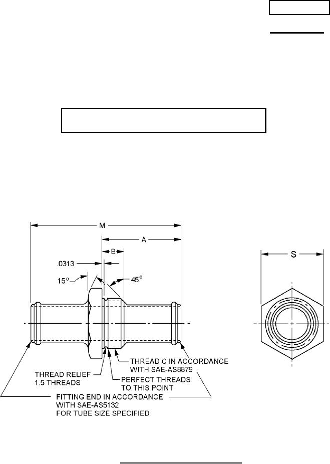
FIGURE 1. Nipple dimensions and configuration.
AMSC N/A
FSC 4730
For Parts Inquires call Parts Hangar, Inc (727) 493-0744
© Copyright 2015 Integrated Publishing, Inc.
A Service Disabled Veteran Owned Small Business