
INCH-POUND
AN915 Rev 13
22 November 2013
SUPERSEDING
AN915 Rev 12
19 July 2011
DETAIL SPECIFICATION SHEET
ELBOW, PIPE, 45°
Reinstated after 19 July 2011. Inactive for new design.
For new design, use SAE-AS4855.
This specification is approved for use by all Departments and
Agencies of the Department of Defense.
The requirements for acquiring the product described herein shall consist of this specification sheet and
SAE-AS4842.
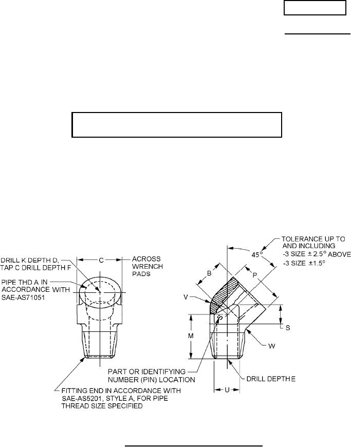
FIGURE 1. Elbow 45° dimensions and configuration.
AMSC N/A
FSC 4730
For Parts Inquires call Parts Hangar, Inc (727) 493-0744
© Copyright 2015 Integrated Publishing, Inc.
A Service Disabled Veteran Owned Small Business