
INCH-POUND
AN916 Rev 11
19 July 2011
SUPERSEDING
AN916 Rev 10
10 February 1984
DETAIL SPECIFICATION SHEET
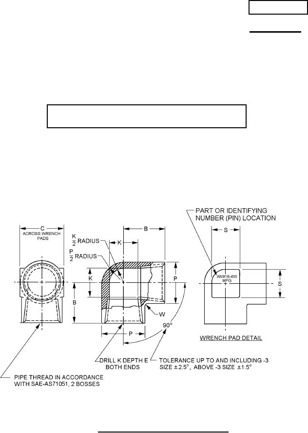
ELBOW, PIPE, INTERNAL THREAD, 90°
Reinstated after 19 July 2011. Inactive for new design.
For new design, use SAE-AS4856.
This specification is approved for use by all Departments and
Agencies of the Department of Defense.
The requirements for acquiring the product described herein shall consist of this specification sheet and
SAE-AS4842.
FIGURE 1. Elbow 90° dimensions and configuration.
AMSC N/A
FSC 4730
For Parts Inquires call Parts Hangar, Inc (727) 493-0744
© Copyright 2015 Integrated Publishing, Inc.
A Service Disabled Veteran Owned Small Business