
INCH-POUND
AN924 Rev 13
14 April 2014
SUPERSEDING
AN924 Rev 12
w/AMENDMENT 1
23 January 2013
DETAIL SPECIFICATION SHEET
NUT, TUBE, BULKHEAD AND UNIVERSAL FITTING
Reinstated after 14 June 2012. Inactive for new design.
For new design, use SAE-AS5178.
This specification is approved for use by all Departments and
Agencies of the Department of Defense.
The requirements for acquiring the product described herein shall consist of this specification sheet and
SAE-AS4841.
Inch
mm
.005
0.13
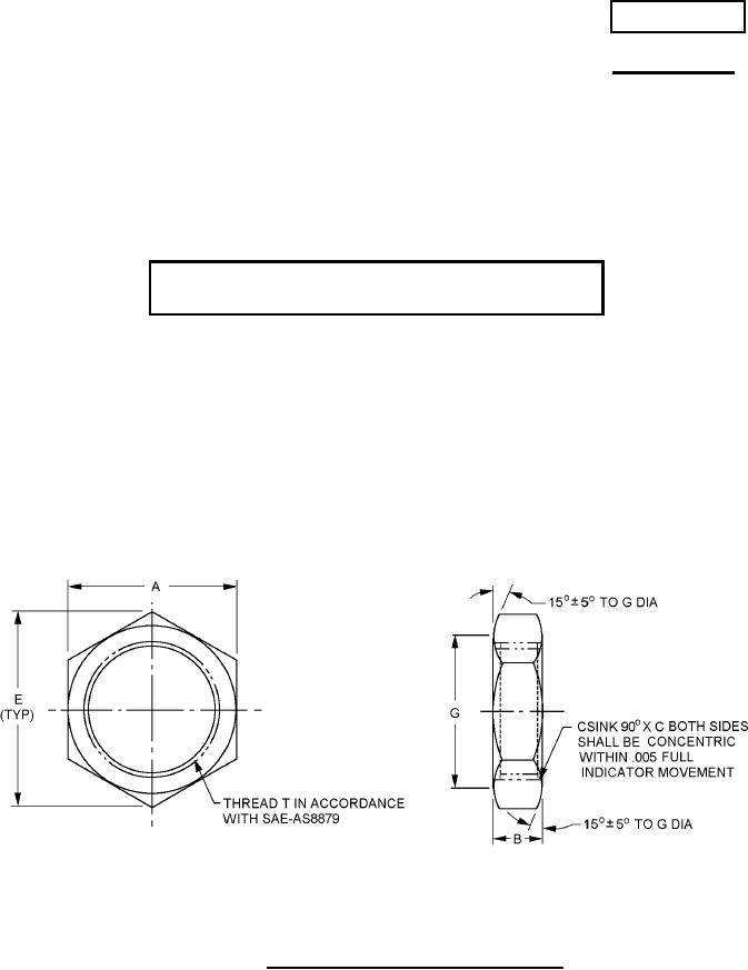
FIGURE 1. Tube nut dimensions and configurations.
AMSC N/A
FSC 4730
For Parts Inquires call Parts Hangar, Inc (727) 493-0744
© Copyright 2015 Integrated Publishing, Inc.
A Service Disabled Veteran Owned Small Business