
MIL-DTL-24788A
(Copies of this document are available online at www.sae.org or from SAE World Headquarters, 400
Commonwealth Drive, Warrendale, PA 15096-0001.)
2.4 Order of precedence. In the event of a conflict between the text of this document and the references cited
herein, the text of this document takes precedence. Nothing in this document, however, supersedes applicable laws
and regulations unless a specific exemption has been obtained.
3. REQUIREMENTS
3.1 Qualification. Semi-dry-break, quick-disconnect coupling assemblies (or components) furnished under this
specification shall be products that are authorized by the qualifying activity for listing on the applicable qualified
products list before contract award (see 4.2 and 6.2).
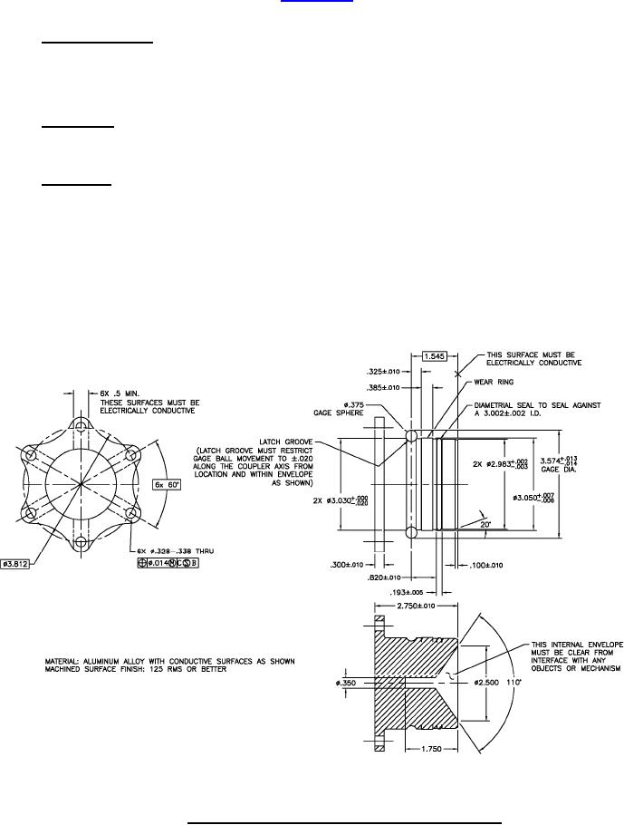
3.2 Components. A complete semi-dry-break, quick-disconnect coupling assembly shall consist of male
(otherwise known as nipple) and female (otherwise known as quick-disconnect coupling or coupling) halves. The
dry-break feature shall be included within the female (hose) half only. The female half mates to the aircraft
refueling hose as depicted in Figure 2. The male half shall mate with the standard SAE AS5877 aircraft pressure
fuel nozzle and shall be in accordance with Figure 1. When the male and female halves are mated to the nozzle and
aircraft refueling hose, respectively, the male and female halves are connected to complete the semi-dry-break,
quick-disconnect coupling assembly.
FIGURE 1. Requirements for male half of quick-disconnect assembly.
3
For Parts Inquires call Parts Hangar, Inc (727) 493-0744
© Copyright 2015 Integrated Publishing, Inc.
A Service Disabled Veteran Owned Small Business