
INCH-POUND
MIL-DTL-52525/11C
20 November 2008
SUPERSEDING
MIL-DTL-52525/11B
30 June 1998
DETAIL SPECIFICATION SHEET
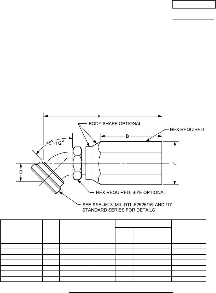
FITTINGS, HOSE, SCREW-ON TO 4-BOLT
SPLIT-FLANGE, 45 BENT TUBE
This specification is approved for use by all Departments and
Agencies of the Department of Defense.
The requirements for acquiring the product described herein shall consist of this specification sheet
and MIL-DTL-52525.
Flange head
Hose
Hose
Tube
Part or Identifying
A
Flange
dash
ID ref
dash
dash
Number (PIN)
inches (mm)
size
no.
inches (mm)
number
no.
inches (mm)
M52525/11-8-8
-8
.500 (12.70)
-8
-8
.500 (12.70)
4.00 (101.60)
M52525/11-12-12
-12
.750 (19.05)
-12
-12
.750 (19.05)
4.68 (118.87)
M52525/11-16-16
-16
1.000 (25.40)
-16
-16
1.000 (25.40)
5.45 (138.43)
M52525/11-16-20
-16
1.000 (25.40)
-20
-20
1.250 (31.75)
5.45 (138.43)
M52525/11-20-20
-20
1.250 (31.75)
-20
-20
1.250 (31.75)
6.47 (164.34)
M52525/11-24-24
-24
1.500 (38.10)
-24
-24
1.500 (38.10)
7.00 (177.80)
M52525/11-32-32
-32
2.000 (50.80)
-32
-32
2.000 (50.80)
8.60 (218.44)
FIGURE 1. Fitting, screw-on to 4-bolt split-flange, 45 bent tube.
AMSC N/A
FSC 4730