
INCH-POUND
MIL-DTL-52525/14C
20 November 2008
SUPERSEDING
MIL-DTL-52525/14B
30 June 1998
DETAIL SPECIFICATION SHEET
FITTINGS, HOSE CRIMP TYPE,
SPLIT-FLANGE 45° BENT
This specification is approved for use by all Departments and
Agencies of the Department of Defense.
The requirements for acquiring the product described herein shall consist of this specification sheet
and MIL-DTL-52525.
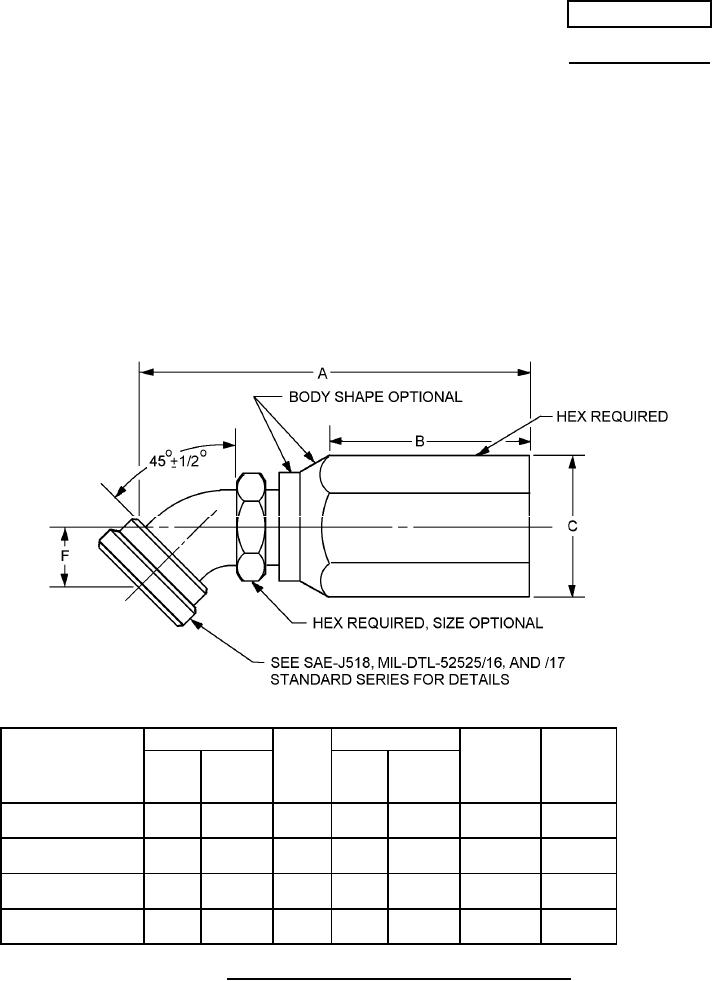
Hose
flange head
A
B
Tube
Part or Identifying
size
ID
inches
inches
dash
Dash
Dash
Number (PIN)
inches
inches
(mm)
(mm)
no.
no.
no
(mm)
(mm)
.750
5.62
1.94
.750
-12
-12
M52525/14-12-12
-12
(19.05)
(142.75)
(49.28)
(19.05)
1.000
5.79
2.03
1.000
-16
-16
M52525/14-16-16
-16
(25.40)
(147.07)
(51.56)
(25.40)
1.250
7.77
3.00
1.250
-20
-20
M52525/14-20-20
-20
(31.75)
(197.36)
(76.20)
(31.75)
1.500
1.500
8.83
2.87
M52525/14-24-24
-24
-24
-24
(38.10)
(38.10)
(224.28)
(72.90)
FIGURE 1. Fitting, screw-on to 4-bolt split-flange, 45° bent tube.
AMSC N/A
FSC 4730