
INCH-POUND
MIL-DTL-52525/15C
20 November 2008
SUPERSEDING
MIL-DTL-52525/15B
30 June 1998
DETAIL SPECIFICATION SHEET
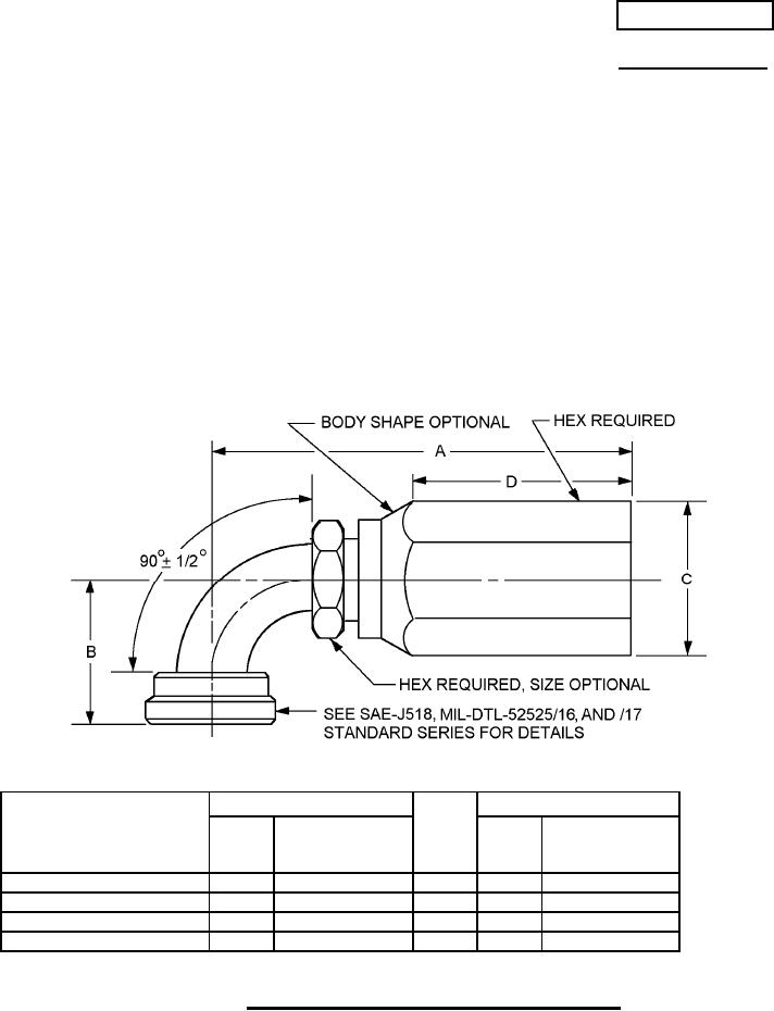
FITTINGS, HOSE, SCREW-ON TO
4-BOLT SPLIT-FLANGE, 90° BENT TUBE
This specification is approved for use by all Departments and
Agencies of the Department of Defense.
The requirements for acquiring the product described herein shall consist of this specification sheet
and MIL-DTL-52525.
Hose
flange head
Tube
Part or Identifying Number
Size
ID
dash
Dash
Dash
(PIN)
inches
inches
no.
no.
no
(mm)
(mm)
M52525/15-12-12
-12
.750 (19.05)
-12
-12
.750 (19.05)
M52525/15-16-16
-16
1.000 (25.40)
-16
-16
1.000 (25.40)
M52525/15-20-20
-20
1.250 (31.75)
-20
-20
1.250 (31.75)
M52525/15-24-24
-24
1.500 (38.10)
-24
-24
1.500 (38.10)
FIGURE 1. Fitting, screw-on to 4-bolt split-flange, 90° bent tube.
AMSC N/A
FSC 4730