
INCH-POUND
MIL-DTL-52525/34B
1 December 2008
SUPERSEDING
MIL-DTL-52525/34A
30 June 1998
DETAIL SPECIFICATION SHEET
FITTINGS, HOSE, SCREW-ON TO 4-BOLT SPLIT-FLANGE, STRAIGHT
This specification is approved for use by all Departments and
Agencies of the Department of Defense.
The requirements for acquiring the product described herein shall consist of this specification sheet
and MIL-DTL-52525.
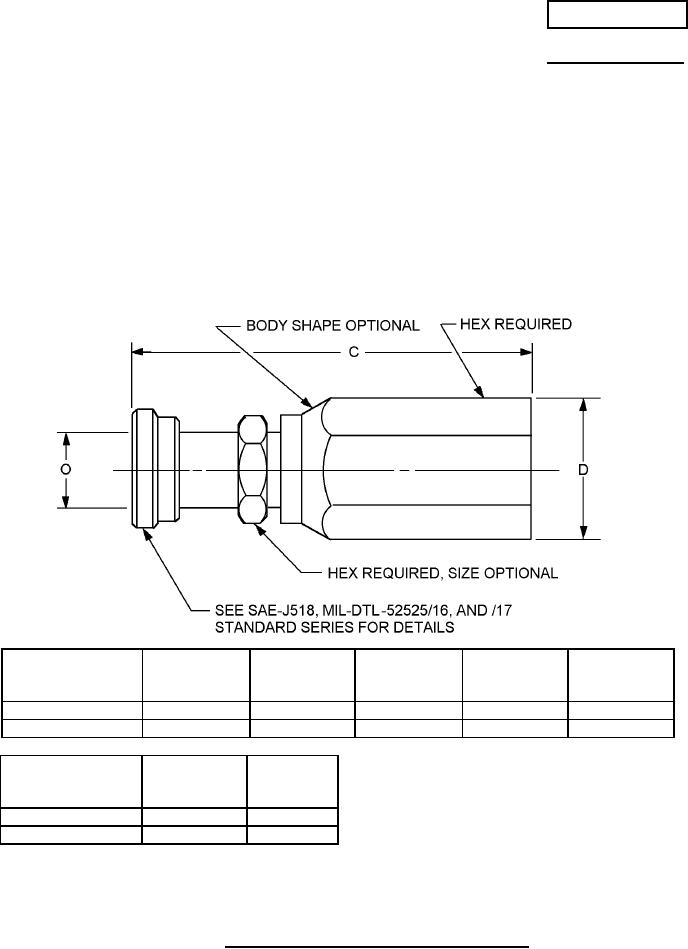
Hose
Hose
Tube
Part or Identifying
Flange
A max
ID
OD
OD
Number (PIN)
head
inches (cm)
inches (mm)
inches (mm)
inches (mm)
M52525/34-12-12
.75 (19.05)
1.26 (32.00)
.75 (19.05)
.75 (19.05)
6.00 (15.24)
M52525/34-16-16
1.00 (25.40)
1.51 (38.35)
1.00 (25.40)
1.00 (25.40)
7.00 (17.78)
D min
C max
inches
PIN
inches (mm)
(mm)
M52525/34-12-12
1.88 (47.75)
.60 (15.24)
M52525/34-16-16
2.31 (58.67)
.75 (19.05)
NOTES:
1. Dimensions are in inches.
2. Metric equivalents are given for information only.
FIGURE 1. Fitting, screw-on to 4-bolt split-flange, straight.
AMSC N/A
FSC 4730