
INCH-POUND
MIL-DTL-52525/8C
12 November 2008
SUPERSEDING
MIL-DTL-52525/8B
30 June 1998
DETAIL SPECIFICATION SHEET
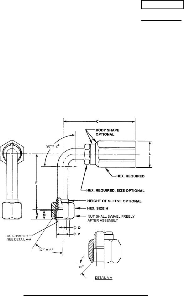
FITTINGS, HOSE, SCREW-ON TO 37° FLARE FEMALE SWIVEL,
90° BENT TUBE, LONG DROP
This specification is approved for use by all Departments and
Agencies of the Department of Defense.
The requirements for acquiring the product described herein shall consist of this specification sheet
and MIL-DTL-52525.
FIGURE 1. Fitting, hose, screw-on to 37° flare, 90° bent tube, long drop.
AMSC N/A
FSC 4730