
MIL-PRF-20042E
FIGURE 2.
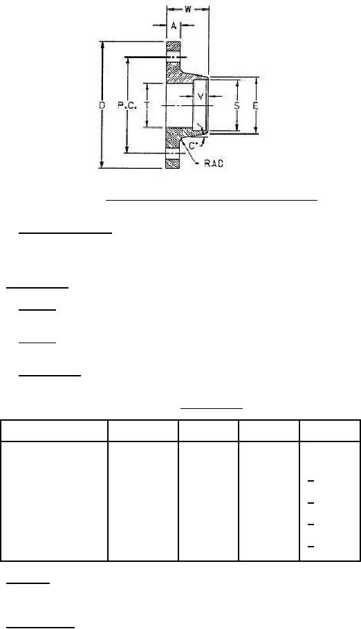
Detail dimensions of plain flanges.
3.5.2 Flange drilling. Unless otherwise specified (see 6.2), flanges
shall be drilled. Flanges shall be spot faced in accordance with MSS SP-9.
The number and size of holes shall conform to tables XII through XV according
to the classification of the flanges furnished.
3.6
Dimensions.
3.6.1 Socket. In measuring the depth of the socket in all the
applicable tables specified herein, the chamfer shall be included.
3.6.2 Flange. Flange dimensions shall be as specified in the
applicable figures and tables.
3.6.3 Tolerances. Tolerances shall be plus or minus 0.010 inch for
decimal dimensions, unless otherwise specified herein or as shown in table II.
TABLE II.
Tolerances.
NPS
D
O
S
W
Inch
Inch
Inch
Inch
1-1/4 and under
+ 0.125
+ 0.000
+ 0.003
+ 0.063
- 0.000
- .031
- .000
+
.063
1-1/2 to 2
+ .125
+ .000
+ .005
- .000
- .031
- .000
+
.063
2-1/2 to 12
+ .188
+ .000
+ .007
- .000
- .047
- .000
+
.063
14 and over
+ .250
+ .000
+ .010
- .000
- .047
- .000
3.7 Marking. The size, pressure rating ("50", "100", "150", "250", or
"400"), and "WOG" shall be legibly and permanently marked on the rim or back
face of all flanges for identification.
3.8 Workmanship. Flanges shall be sound, smoothly cored, true to form,
uniform in texture, and free of adhering sand, hard spots, cold shuts,
porosity, or any other defects which may affect serviceability. They shall be
thoroughly cleaned, inside and outside, and all fins and roughness that are
5
For Parts Inquires call Parts Hangar, Inc (727) 493-0744
© Copyright 2015 Integrated Publishing, Inc.
A Service Disabled Veteran Owned Small Business